Basecamp Isfjorden

Cabins play a big part in the Norwegian culture, contributing to our country’s close relationship with nature and overall sense of well-being. However, this has two sides. While utilizing nature for activities is beneficial, it leads to constructing accommodations in valuable natural landscapes, destroying and flattening large squares of land. Simultaneously, the ascent of Randone introduces a new opportunity, enabling access to previously unexplored and magnificent natural environments. My task is therefore to create a structure that can accommodate people interested in randonee skiing.

The vision for this project is to create a community house for randonee skiers that off ers accommodations for skiers to use as a basecamp. Currently, randonee skiers struggle to fi nd suitable accommodation, so they opt for random accommodations near the mountains such as camping spots, hotels, or random houses that are not specifi cally designed for skiers. By establishing a house for freeskiers in the heart of a larger mountain system, it could foster a sense of community where people with similar interests can gather. This would not only provide an opportunity to fi nd traveling partners who share similar goals of traversing the same mountains but also a place to share valuable information and experiences. By doing so, it would increase safety during mountain climbs and ski descents, reducing the risk of avalanches and other accidents.

I aim for the project to provide budget-friendly options so that the basecamp can be accessible to the younger generation and ski enthusiasts who may not be able to aff ord expensive cabins or luxurious hotels, I want it to be a place for individuals who are new to the sport mixed with experienced freeskiers who can share their knowledge. At present, it appears that the opportunity to experience nature and stay in a cabin is restricted to older individuals who can aff ord to go to the mountains for skiing during weekends and vacations. But hopefully this can be a new way of going skiing that doesn’t need to cost too much, where you don’t need to think about the cost of the ski lift and the hefty price of living.

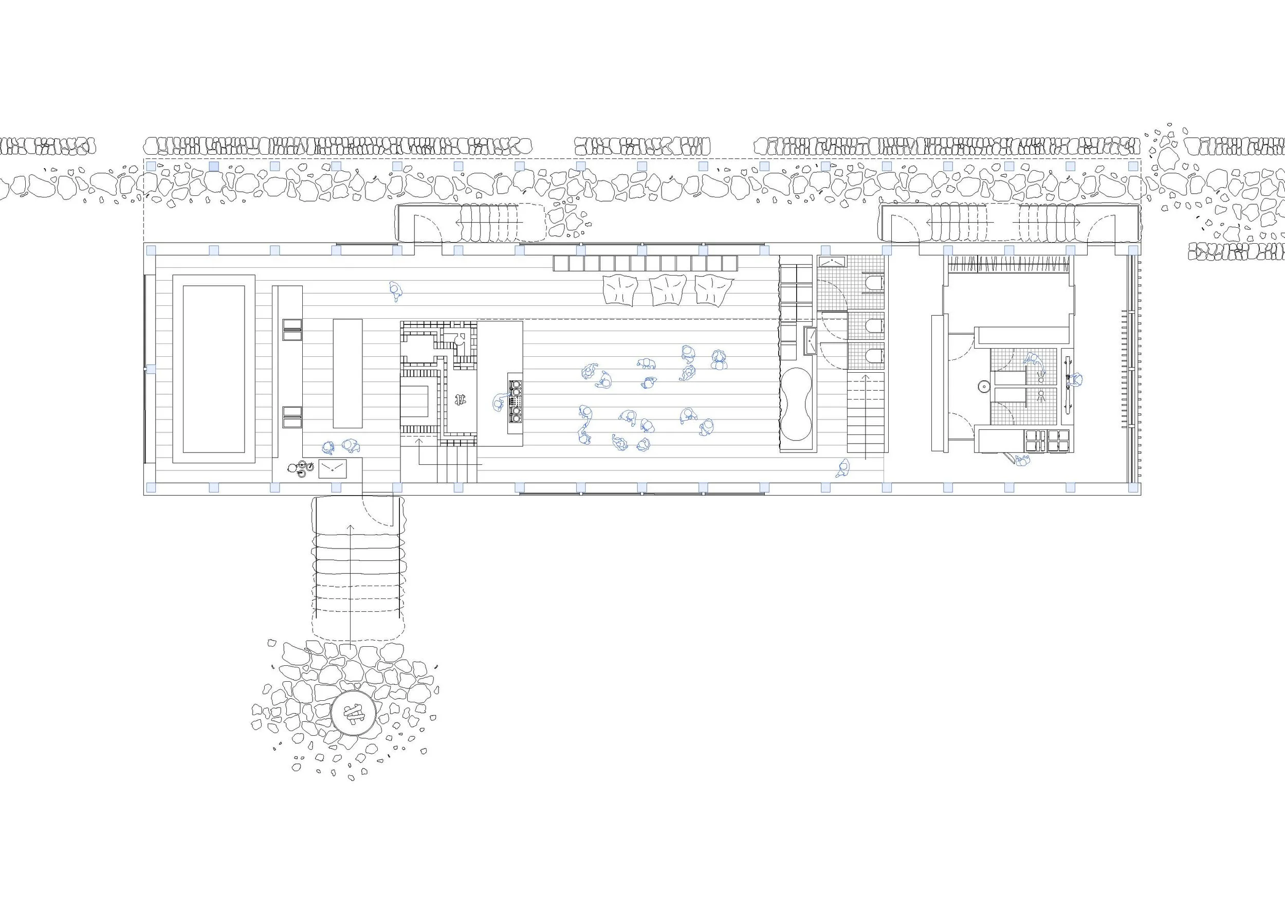
The cabin is placed down in the town and not up in the mountains. One of the reasons I placed it here was because I wanted the building to be a basecamp where you can travel all around the surrounding mountain landscape, not a cabin where the cabin is the goal for the trip. This meant the focus for the task was to create great spaces that focus on the period before and after the ski trip. Another reason is to connect the project to the town of Isfjorden so that the structure can both bring people into the town, as well as giving a building that can be used by the people living in Isfjorden.

The building starts with a long, stacked stone wall that reaches from the car park to the Basecamp. The car park has space for people to come with cars as well as vans if you travel around with that. The wall acts like a guiding tool for people and animals at the same time as it works like a shelter, sheltering from wind and sun as well as magazinating and radiating heat.

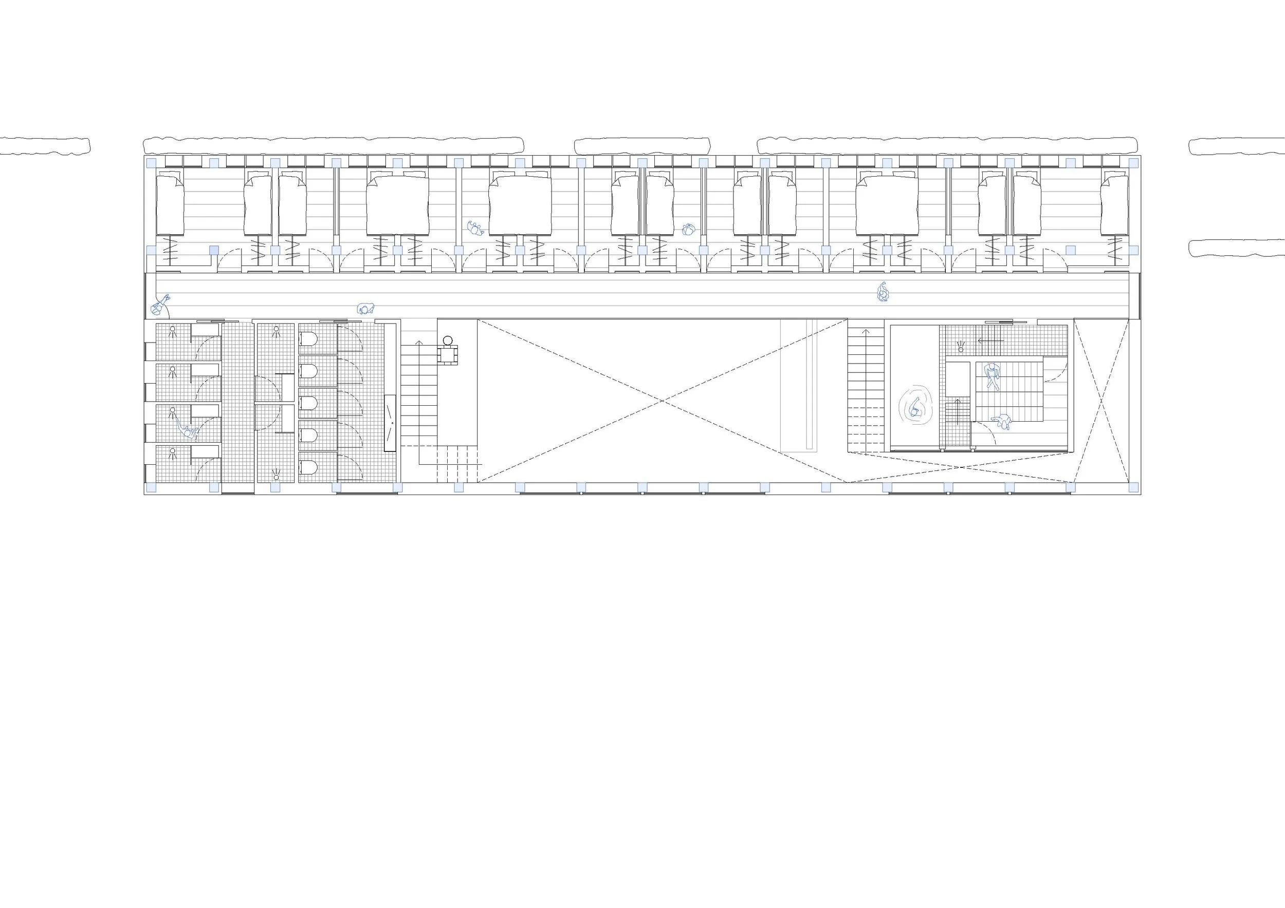
The structure itself is inspired by the Norwegian storehouse where the structure meets the ground in a gentle way where the columns lift the building up from the ground so that the only points meeting the ground is where the columns meet the ground. The structure is 32m long and can house 32 people for accommodation. Although the building has a capacity of 32 people, the structure also facilitates for the people staying in a caravan or a van.

To sum up, the building addresses the intricate balance between promoting exploration to a dangerous area and making randonee a safer activity in the majestic vestlands alps. While acknowledging the risks with more activity in the avalanche-prone areas, the project seeks to create a collaborative environment to enhance skiers knowledge/risk awareness. The building serves as a gateway to the surrounding mountain terrain and tries to create the best possible spaces for the pre/post ski experience. The architecture has elements of Norwegian storehouses tries to be thoughtful, it aims to invite both visitors and locals to engage with the space. With accommodations for 32 people and provisions for those traveling in alternative vehicles, this basecamp aspires to be a place of knowledge, and community engagement in the middle of the vestlands alps.

Sketches:

Next
Next

Bridging Water